

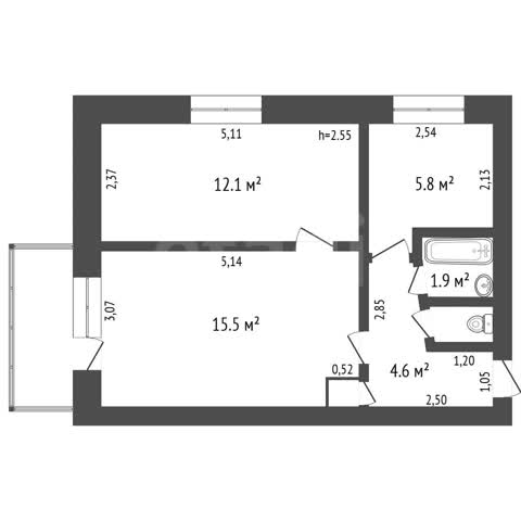
Планировка
Карта

3D-планировка




















Хотите скидку?
Предложите свою стоимость!
Описание
Изменено: 04.03.26
Продается 2-комнатная квартира в развитом микрорайоне Черемушки на ул. Киркижа, 8.
Квартира теплая и светлая, расположена на 4 этаже 5-этажного кирпичного дома.
О квартире:
✅ Общая площадь 41.2 кв. м.
✅ 2 просторные комнаты 15,5 и 12,1 кв.м.
✅ Окна ПВХ.
✅ Батареи биметалл.
✅ Трубы ПВХ.
✅ С/у раздельный
✅ Балкон застеклен, оборудован шкафом для хранения.
О доме:
✅ Дом кирпичный.
✅ Чистые подъезды.
✅ Дружелюбные соседи.
✅ Детская площадка во дворе.
✅ Много парковочных мест.
О районе:
В шаговой доступности остановки общественного транспорта, школа, детские сады, сетевые магазины.
❗️ Мы гарантируем безопасность вашей сделки.
❗️ Помогаем с одобрением ипотеки со скидками от банков-партнеров.
❗️ Возможно использовать мат. капитала и сертификатов.
❗️ Оперативный показ. Звоните и записывайтесь на просмотр!
Характеристики
- Код объекта9184554
- Общая площадь41.2 м²
- Площадь кухни6 м²
- РемонтТребует ремонта / Частичный ремонт
- Год постройки1967
- Этаж/Этажность4 из 5
- СтеныКирпичные
Что-то не так с объявлением?
Сообщите нам, и мы разберёмся в проблеме
- Главная
- Квартиры
- Двухкомнатные квартиры
- Черёмушки мкр
- Киркижа
- Код объекта 9184554
